番組表
閉じる
メニュー
エンタメ・音楽
今夜ついに決着!?シーフード大論争
#97
家呑み華大
2026年4月23日(木)よる10:00~10:30
リンゴ・スター、ニール・ダイアモンド、リゾ
#1141
ベストヒット USA
2026年4月23日(木)よる11:30~深夜0:00
スポーツ
個性際立つ欧州コンパクト 異なる魅力を乗り比べる
#2026
カーグラフィックTV
2026年4月23日(木)よる11:00~11:30
ネコいぬワイドショー #172ゲスト:高城れに(ももいろクローバーZ)
ネコいぬワイドショー
2026年4月23日(木)よる9:00~9:54
門真市(大阪府)
#119
ケンコバのほろ酔いビジホ泊 全国版
2026年4月23日(木)よる10:30~11:00
銀のマルシェ
銀のマルシェは、人生の新しい一歩に光を当て、人と社会をつなぐ取り組みです。
AMBER GAMES
“おもしろい”を発見・発掘・世界とつなぐゲームレーベルです。
BS朝日無料見逃し配信
放送終了後、期間限定で無料配信中!見逃し配信はTVerで!
BS朝日セールスサイト
効果的な広告配信でビジネスをサポート。 お気軽にご相談ください。
BS朝日×地方創生
BS朝日が取り組む地方創生:『発信』と『体験』“知る人ぞ知る地域の魅力”にフォーカス
BS朝日「ウェルビーイング放送中!」
テレビ局らしく、エンターテインメントにして届けていく。BS朝日の、新しい挑戦です。
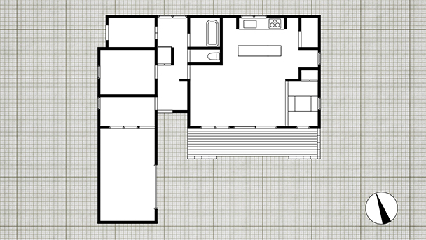
米軍横田基地がある街として知られる東京都福生市。 1940年に陸軍多摩飛行場が開設。戦後に飛行場が米軍に接収されると、 軍の関係者を相手にした商店が次々と誕生しました。 個性的なお店が軒を連ねる16号線沿いは “福生ベースサイドストリート”と呼ばれ、今でも観光スポットとして人気を博しています。 今回はこの福生市に建つ築61年の平屋をリモデルされたNさんご夫婦を訪ねます。N邸が建つエリアは、米兵のために作られた住居“米軍ハウス”が多くありました。現在は、米軍ハウスの数は150棟ほどに減りましたが、その雰囲気が好きだった二人はそのテイストを盛り込んだ住まいにリモデルしたのです。 以前は、断熱性能が低かったため寒かったため健康面を考慮し一新することに。屋根や、壁、床下に断熱材を充填し、さらに窓はアルミ樹脂複合窓に変更しました。段違いに過ごしやすくなり、19歳になる愛猫ものびのび過ごせるようになったと言います。さらに、狭くて収納が少なかったキッチンは、広げてカウンターを設けました。カウンターの背面には食器棚や家電用の収納を造作。奥様の好きな食器を集められるようになりました。ご主人の趣味はバイク。以前は独立したガレージがありましたが、リモデルを機に繋げることに。そのガレージの隣に仕事部屋を設け、大きなフィックス窓からバイクを眺めながら仕事ができるようにしました。ついつい好きなバイクに気を取られ仕事が進まないこともあるとか。自分たちの好きが詰まった今回のリモデルは一切不満がないというNさん。リモートワークということもあり、普段はなかなか外出しないそうですが、リモデル後は居心地が良すぎて、更に出不精になったと笑う奥様。お二人と愛猫との素敵な時間がゆったり流れるお宅になりました。 設計担当:細田邦彦さん/ HOUSETRAD https://housetrad.com/
after
前へ
米軍横田基地がある街として知られる東京都福生市。
1940年に陸軍多摩飛行場が開設。戦後に飛行場が米軍に接収されると、
軍の関係者を相手にした商店が次々と誕生しました。
個性的なお店が軒を連ねる16号線沿いは “福生ベースサイドストリート”と呼ばれ、今でも観光スポットとして人気を博しています。
今回はこの福生市に建つ築61年の平屋をリモデルされたNさんご夫婦を訪ねます。N邸が建つエリアは、米兵のために作られた住居“米軍ハウス”が多くありました。現在は、米軍ハウスの数は150棟ほどに減りましたが、その雰囲気が好きだった二人はそのテイストを盛り込んだ住まいにリモデルしたのです。
以前は、断熱性能が低かったため寒かったため健康面を考慮し一新することに。屋根や、壁、床下に断熱材を充填し、さらに窓はアルミ樹脂複合窓に変更しました。段違いに過ごしやすくなり、19歳になる愛猫ものびのび過ごせるようになったと言います。さらに、狭くて収納が少なかったキッチンは、広げてカウンターを設けました。カウンターの背面には食器棚や家電用の収納を造作。奥様の好きな食器を集められるようになりました。ご主人の趣味はバイク。以前は独立したガレージがありましたが、リモデルを機に繋げることに。そのガレージの隣に仕事部屋を設け、大きなフィックス窓からバイクを眺めながら仕事ができるようにしました。ついつい好きなバイクに気を取られ仕事が進まないこともあるとか。自分たちの好きが詰まった今回のリモデルは一切不満がないというNさん。リモートワークということもあり、普段はなかなか外出しないそうですが、リモデル後は居心地が良すぎて、更に出不精になったと笑う奥様。お二人と愛猫との素敵な時間がゆったり流れるお宅になりました。
設計担当:細田邦彦さん/ HOUSETRAD
https://housetrad.com/