番組表
閉じる
メニュー
旅・くらし
自炊45 コース料理でおもてなし
きっちりおじさんのてんやわんやクッキング
2026年3月9日(月)よる10:30~10:54
スポーツ
宍戸ヒルズカントリークラブ①
#204
極上!ゴルフ場探訪
2026年3月9日(月)よる10:00~10:30
エンタメ・音楽
ファーレイ株式会社 前篇
#145
ウェルビーイング、みつけた
2026年3月9日(月)よる8:54~9:00
女子ゴルフペアマッチ選手権 女王決定戦SP準決勝 第1試合
女子ゴルフペアマッチ選手権
準決勝 第1試合 2026年3月9日(月)よる9:00~9:54準決勝 第2試合2026年3月16日(月)よる9:00~9:54決勝2時間SP 2026年3月30日(月)よる9:00~10:54
15分から働けるレストラン 小栗加奈(おぐり・かな)49歳
未来につなぐエール
2026年3月8日(日)午後6:54~よる7:00
BS朝日「ウェルビーイング放送中!」
テレビ局らしく、エンターテインメントにして届けていく。BS朝日の、新しい挑戦です。
BS朝日開局25周年記念サイト
BS朝日は2025年の12月に開局25年を迎えます。
BS朝日無料見逃し配信
放送終了後、期間限定で無料配信中!見逃し配信はTVerで!
銀のマルシェ
BS朝日 シニアビジネスプロジェクト始動! シニアが主役の番組・イベントなどに挑戦!
BS朝日×地方創生
BS朝日が取り組む地方創生:『発信』と『体験』“知る人ぞ知る地域の魅力”にフォーカス
BS朝日セールスサイト
効果的な広告配信でビジネスをサポート。 お気軽にご相談ください。
湘南のシンボル、江の島を望む鵠沼海岸。かつてこの辺りは、白鳥の古い呼び名、「鵠(くぐい)」が飛来する沼地だったことから、鵠沼(くげぬま)と呼ばれるようになったそうです。明治に入り、海水浴場が開設されると別荘地や保養地として発展。海岸近くの旅館「東屋(あずまや)」には、近代文学の騎手たちが集まり、白樺派が結成されました。その後も、川端康成を始め多くの作家や映画人たちが居を構えた文化の薫り高い街です。 今回はこの鵠沼で築24年の木造一戸建てを購入しリモデルされたTさん一家を訪ねます。 建築関係の仕事に携わっているTさんご夫妻は、自宅のリモデルで実験的な設計や素材に挑戦したいと、物作りが大好きな長男も一緒に家づくりが経験できるよう、設計から施工まで自分たちも参加できる会社にリモデルを依頼。 Tさん一家はドイツで暮らしたことのある経験から、日本とヨーロッパ、それぞれの気に入ったところを住まいに取り込んだそうです。 まず、玄関は新たに土間を設けて広くし、家族それぞれで仕切った荷物置き場を造作。これは長男がドイツの幼稚園に通っていた時のロッカーから着想を得たものなんです。また、キッチンの床には、天然素材から作られるリノリウムを採用。これもドイツ在住時代に出会ったアイデアのひとつ。 リビングの斜めの床材が向く方向の先には、なんと富士山が!実は、富士山が見える眺望に一目惚れし、この家を購入したというTさん。T邸が建つ場所は高台になっており、富士山をはじめ、丹沢の山々を見ることができるので、バルコニーに物見櫓を造ったんです。家の中からも外からも大好きな富士山と贅沢な眺望を楽しむことができます。 現在、1階のアトリエスペースとして使っている空間を、来春から中学生になる長男の部屋にリモデルを検討中。今回のリモデルで仲良くなったチームとまたタッグを組むことに。知的好奇心を育みながら永く愛着が湧く住まいとなったようです。 設計担当:中田理恵さん/ 中田製作所 https://nakata-archi.com
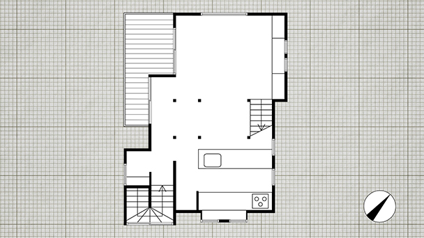
1F before
1F after
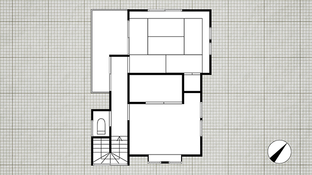
2F before
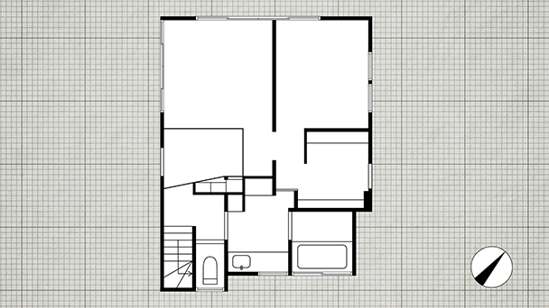
2F after
前へ
湘南のシンボル、江の島を望む鵠沼海岸。かつてこの辺りは、白鳥の古い呼び名、「鵠 」が飛来する沼地だったことから、鵠沼 と呼ばれるようになったそうです。明治に入り、海水浴場が開設されると別荘地や保養地として発展。海岸近くの旅館「東屋 」には、近代文学の騎手たちが集まり、白樺派が結成されました。その後も、川端康成を始め多くの作家や映画人たちが居を構えた文化の薫り高い街です。
今回はこの鵠沼で築24年の木造一戸建てを購入しリモデルされたTさん一家を訪ねます。
建築関係の仕事に携わっているTさんご夫妻は、自宅のリモデルで実験的な設計や素材に挑戦したいと、物作りが大好きな長男も一緒に家づくりが経験できるよう、設計から施工まで自分たちも参加できる会社にリモデルを依頼。
Tさん一家はドイツで暮らしたことのある経験から、日本とヨーロッパ、それぞれの気に入ったところを住まいに取り込んだそうです。
まず、玄関は新たに土間を設けて広くし、家族それぞれで仕切った荷物置き場を造作。これは長男がドイツの幼稚園に通っていた時のロッカーから着想を得たものなんです。また、キッチンの床には、天然素材から作られるリノリウムを採用。これもドイツ在住時代に出会ったアイデアのひとつ。
リビングの斜めの床材が向く方向の先には、なんと富士山が!実は、富士山が見える眺望に一目惚れし、この家を購入したというTさん。T邸が建つ場所は高台になっており、富士山をはじめ、丹沢の山々を見ることができるので、バルコニーに物見櫓を造ったんです。家の中からも外からも大好きな富士山と贅沢な眺望を楽しむことができます。
現在、1階のアトリエスペースとして使っている空間を、来春から中学生になる長男の部屋にリモデルを検討中。今回のリモデルで仲良くなったチームとまたタッグを組むことに。知的好奇心を育みながら永く愛着が湧く住まいとなったようです。
設計担当:中田理恵さん/ 中田製作所
https://nakata-archi.com