番組表
閉じる
メニュー
報道・ドキュメンタリー
こと京都株式会社 代表取締役 山田敏詩 後編「北上」する九条ネギの栽培地 温暖化の影響を避け
#158
トップの源流
2026年4月18日(土)よる6:00~6:30
エンタメ・音楽
「北の出世船」「一番マグロの謳」「風雪ながれ旅」ほか…福田こうへい名場面集!
#297
人生、歌がある
2026年4月18日(土)よる7:00~8:54
日本の四季
#138
子供たちに残したい 美しい日本のうた
2026年4月18日(土)午前11:00~ひる12:00
旅・くらし
「南仏リバークルーズ 絶景と歴史を楽しむ旅」
#440
世界の船旅
2026年4月18日(土)午前9:30~9:55
お婿さんが惚れ込んだ ひとり娘の吉祥寺の家
#206
辰巳琢郎の家物語 リモデル★きらり
2026年4月18日(土)ひる12:00~12:30
銀のマルシェ
銀のマルシェは、人生の新しい一歩に光を当て、人と社会をつなぐ取り組みです。
AMBER GAMES
“おもしろい”を発見・発掘・世界とつなぐゲームレーベルです。
BS朝日無料見逃し配信
放送終了後、期間限定で無料配信中!見逃し配信はTVerで!
BS朝日セールスサイト
効果的な広告配信でビジネスをサポート。 お気軽にご相談ください。
BS朝日×地方創生
BS朝日が取り組む地方創生:『発信』と『体験』“知る人ぞ知る地域の魅力”にフォーカス
BS朝日「ウェルビーイング放送中!」
テレビ局らしく、エンターテインメントにして届けていく。BS朝日の、新しい挑戦です。
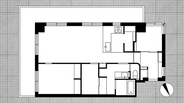
杉並区・西荻窪。通称「ニシオギ」と呼ばれ、アンティークショップなど、 心がくすぐられる店が多く、個性的な雰囲気に惹きつけられる街です。 今回はこの街に築38年のマンションを購入しリモデルされたお宅を訪ねます。 施主のKさんとOさんは、以前賃貸で暮らしていましたが、「犬を飼いたい」というKさんの夢を叶えるためマンションを購入することに。また、Oさんがフィンランドに交換留学をした時、現地の住まいの快適さに感激。その時の体験を生かしたリモデルとなりました。 マンションのリモデルでは、今までなかなか重視されていなかった『断熱性能の向上』にとことんこだわったリモデルに挑戦!既存の窓はアルミサッシかつ単板ガラスだったため、その窓の内側に設置できる「ウチリモ内窓」を採用。既存の窓と内窓の間に空気層ができるため、外気の影響を受けにくく、樹脂フレームがさらに断熱効果を高めています。さらに、スケルトンにした際に、外気に接する外壁や、上の階に部屋が無かったので天井にも断熱材を施しました。床にもグラスウールを付加し、断熱性能の向上を図りました。 日本在住のフィンランド人の友人や同じマンションに住んでいる友人が遊びに来た時に、居心地のよい空間に驚かれるといいます。 「断熱性能」にこだわりたいという思いと「犬を飼う」という夢を叶えた素敵なリモデルとなりました。 設計担当:須藤希/参創ハウテック https://www.juutaku.co.jp/index.html
before
after
前へ
杉並区・西荻窪。通称「ニシオギ」と呼ばれ、アンティークショップなど、
心がくすぐられる店が多く、個性的な雰囲気に惹きつけられる街です。
今回はこの街に築38年のマンションを購入しリモデルされたお宅を訪ねます。
施主のKさんとOさんは、以前賃貸で暮らしていましたが、「犬を飼いたい」というKさんの夢を叶えるためマンションを購入することに。また、Oさんがフィンランドに交換留学をした時、現地の住まいの快適さに感激。その時の体験を生かしたリモデルとなりました。
マンションのリモデルでは、今までなかなか重視されていなかった『断熱性能の向上』にとことんこだわったリモデルに挑戦!既存の窓はアルミサッシかつ単板ガラスだったため、その窓の内側に設置できる「ウチリモ内窓」を採用。既存の窓と内窓の間に空気層ができるため、外気の影響を受けにくく、樹脂フレームがさらに断熱効果を高めています。さらに、スケルトンにした際に、外気に接する外壁や、上の階に部屋が無かったので天井にも断熱材を施しました。床にもグラスウールを付加し、断熱性能の向上を図りました。
日本在住のフィンランド人の友人や同じマンションに住んでいる友人が遊びに来た時に、居心地のよい空間に驚かれるといいます。
「断熱性能」にこだわりたいという思いと「犬を飼う」という夢を叶えた素敵なリモデルとなりました。
設計担当:須藤希/参創ハウテック
https://www.juutaku.co.jp/index.html